Dom Luboń, Maciejkowa
Luboń Pokaż na mapie ›
Ogłoszenie archiwalne Wygasło: Środa, 13 Sierpień, 2025 10:10
849 000 zł
6581 zł/m2
Szczegóły ogłoszenia
- Kategoria: Domy / Sprzedaż
- Powierzchnia:129 m2
- Liczba pokoi:5 i więcej pokoi
- Pow. działki:303 m2
- Rynek:Pierwotny
- Sprzedaż:Pośrednik
- Cena: 849 000 zł / 6581 zł/m2
Opis oferty
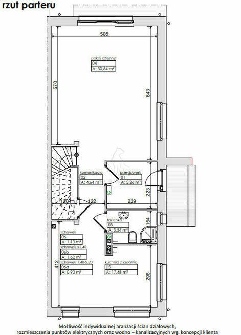
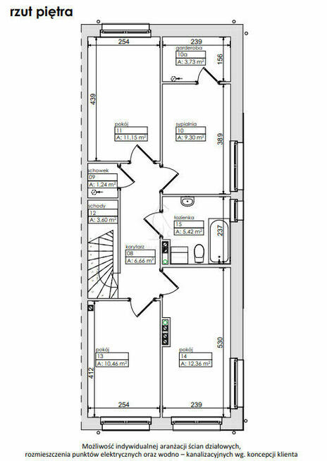
Dom znajduje się w miejscowości Luboń, w otulinie Wielkopolskiego Parku Narodowego. Obejmuje domy bliźniacze o dwóch pełnowymiarowych kondygnacjach. Inwestycja posiada ogrodzony teren, zadbany w niezbędną infrastrukturę komunikacyjną, z drogą wewnętrzną oraz indywidualnymi miejscami parkingowymi na podjazdach. Osiedle uzbrojone jest w media miejskie - prąd, wodę, kanalizację, gaz.W ofercie są dwukondygnacyjne lokale mieszkalne o powierzchni 129 m2, zaprojektowane w układzie pięciopokojowym, co przewiduje kuchnię z jadalnią, schowki, salon z wyjściem na ogród i łazienkę na parterze oraz 4 pokoje, drugą łazienkę i schowek na piętrze. Do każdego segmentu przynależy ogródek o ponad 300 m2.
Numer oferty: 863315
Sprawdź zainteresowanie tym ogłoszeniem
Wyświetlenia
Data dodania
Ostatnio widziany
Obserwujących
Wysłane zapytania
Odsłony telefonu
Powiadom o podobnych ogłoszeniach
Lokalizacja: Luboń
Kategoria: Nieruchomości » Domy » Sprzedaż
Cena: od 721500 zł do 976500 zł Powierzchnia : od 110 m2 do 148 m2
Chcę otrzymywać powiadomienia o nowych ofertach
To ogłoszenie jest archiwalne i może być nieaktualne.
- Wypromuj ogłoszenie
- Zgłoś naruszenie
- Edytuj/usuń ogłoszenie
- Udostępnij ogłoszenie
- Dodaj na Facebook










